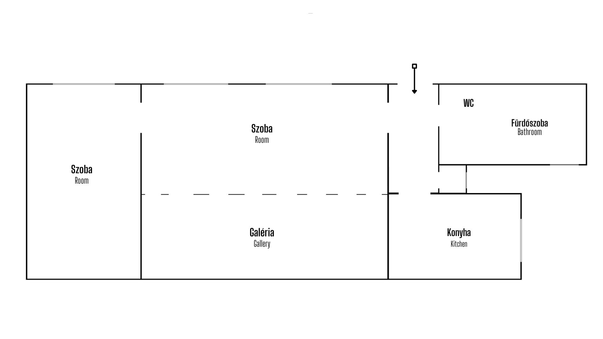
Megvételre kínálom ezt a napfényes, remek alaprajzzal rendelkező ingatlant a történelmi Zsidónegyed szívében, az Akácfa utcában. A társasház liftes, jól karbantartott. Anyagi háttere és lakóközössége egyaránt rendezett. Az ingatlan bejárata a harmadik emeleten a körfolyosóról nyílik. Az ingatlan alapterülete 52.36 négyzetméter, amely egy 10 négyzetméteres fekvőgalériával egészül ki. Alaprajzi szempontból jelenleg egy nyugati fekvésű, napfényes nappalira, különnyíló hálószobára, tágas konyha-étkezőre, tusolóra és fürdőszoba-wc-re tagolt. Alaprajza jelenleg is remek, de ésszerű anyagi ráfordítással amerikai konyhás nappalis, dupla hálós ingatlanná történő átalakítása is lehetséges. Fűtéséről és a melegvízről gázcirkó gondoskodik, a nyári hónapokban pedig két inverteres klíma gondoskodik a mindig kellemes hőérzetről. Műanyag nyílászárói modernizáltak, hőtartó üveggel szereltek. Az ingatlan tehermentes, 1/1-es tulajdon, így akár azonnal birtokba vehető. Bővebb információért és megtekintési időpontért keressen bizalommal, akár hétvégén is!












